By Howard Morrel & Leslie Hirsch
A striking new landmark is nearing completion on Fifth Avenue. The Rolex U.S. Headquarters at 665 Fifth Avenue is entering its final construction phase, marking an exciting moment for both Midtown Manhattan and the legendary watchmaker.
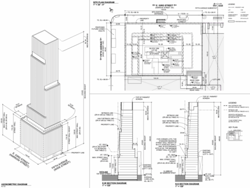
Designed by David Chipperfield Architects in collaboration with Adamson Associates, the 28-story, 469-foot tower will offer 199,000 square feet of premium retail and office space. Developed by the Rolex Realty Company, the structure occupies the corner of Fifth Avenue and East 53rd Street, one of the city’s most prestigious intersections.

A Modern Icon Takes Shape
The building’s elegant pleated glass façade now reaches its crown, reflecting the precision and sophistication synonymous with the Rolex brand. In recent months, crews have removed the tower crane and completed most of the exterior detailing. Meanwhile, final work continues on the podium and ground-floor retail areas.
The first four levels will host flagship retail space, providing an immersive customer experience. Above, office floors from levels five through 25 will feature open layouts, abundant natural light, and views that mirror Rolex’s refined aesthetic. On the top floors, a double-height dining and event space will open onto a terrace with skyline views—an elegant setting that captures the company’s timeless design values.
Sustainable Design and Innovation
Engineered to achieve LEED Platinum certification, the tower embodies Rolex’s commitment to innovation and environmental stewardship. Moreover, the project integrates sustainable materials, advanced energy systems, and optimized building performance to minimize its carbon footprint.
Additionally, a landscaped rear courtyard at the southeast corner brings a touch of greenery to this urban setting. The architecture balances modern minimalism with classic luxury, a design ethos that perfectly represents Rolex’s enduring legacy.

665 Fifth Avenue. Designed by David Chipperfield Architects
Perfectly Positioned in Midtown
Ideally situated in Midtown Manhattan, 665 Fifth Avenue provides direct access to several subway lines, including the B, D, F, and M trains at Rockefeller Center and the E and M trains at Fifth Avenue–53rd Street. Consequently, the location offers exceptional connectivity for both visitors and employees.
The project is expected to achieve substantial completion by December 2025, with the final detailing to continue into early 2026. Once opened, Rolex’s new headquarters will redefine what it means to combine architectural precision, sustainability, and timeless luxury in New York City.
For more information, visit Rolex.com or learn about the architect’s vision at David Chipperfield Architects
Want to learn more? Let’s talk!
All the best,
Howard Morrel & Leslie Hirsch
Christie’s International Real Estate Group
(212) 956-4823
mha@christiesrealestategroup.com
